CAD e disegno

Uso dei sistemi digitali per disegnare e modellare forme

La rappresentazione grafica è un mezzo estremamente diretto ed efficiente per descrivere la progettazione in architettura e ingegneria. Il disegno 2D, in special modo, è divenuto nei secoli un linguaggio tecnico codificato specifico per veicolare le informazioni di questo ambito professionale. Nell’era digitale il CAD è diventato l’ambiente di lavoro informatico in cui produrre e maneggiare non solo disegni, ma veri e proprio database di informazioni di rilievi e progetti. Gli elementi chiave da padroneggiare diventano quindi: gli strumenti (i software); il linguaggio (il codice) e i concetti teorici fondamentali.

L'informazione è tutto

L'obiettivo chiave è maneggiare correttamente le informazioni. Il disegno tecnico si sviluppa come strumento per rappresentare informazioni (rilevate o di progetto) e non solo di natura geometrica. L'obiettivo è descrivere in modo chiaro, semplice e diretto le informazioni adatte alla finalità della singola rappresentazione, così che i dati vengano interpretati correttamente e in modo univoco da qualunque destinatario.

^


Il CAD è un linguaggio codificato

I disegni di architettura e di ingegneria sono informazioni create e interpretate da un linguaggio codificato. E' necessario conoscere il linguaggio e il suo codice per saper interpretare correttamente le informazioni. Questo linguaggio è fortemente simbolico e ha diversi dialetti: Architettura | Meccanica | Impianti | Prodotti

^


Il disegno 2D deve essere controllato

Descrivendo forme 3D usando disegni 2D si possono disegnare forme "impossibili". Sono un esempio il triangolo di Penrose; le forme di Ytturalde e molti disegni di Escher.

^


Rilievo vs Progetto

Descrivere oggetti fisicamente già reali può essere molto diverso dal disegno di progetto. Quando si restituisce un rilievo è necessario scegliere la tipologia di informazioni da descrivere scartandone inevitabilmente altre (ad esempio rettificando andamento e spigoli dei muri scartando le reali minime irregolarità); inoltre è impossibile conoscere completamente l'oggetto quindi è necessario adottare livelli di dettaglio sempre più approfonditi in base alle informazioni disponibili (ad esempio l'interno dei muri).
Quando si rappresentano i progetti si hanno a disposizione tutte le informazioni e le forme e i dettagli sono idealente perfetti: in questo approccio è molto importante selezionare il livello di sviluppo delle informazioni e non aggiungere dati inadeguati alla fase di progettazione rispetto alla finalità del disegno.

^


Proiezioni ortogonali

Il problema complessivo è lavorare in uno spazio a 3 dimensioni usando strumenti di visualizzazione (monitor) e di input dati (mouse) a sole 2 dimensioni. La prospettiva è un sistema di visualizzazione intuitivo che "simula" la terza dimensione ma lo fa ingannando la vista. Le proiezioni ortogonali sono invece realmente a 2 dimensioni quindi perfettamente coerenti col sistema monitor/mouse, ma non permettono la descrizione della profondità.
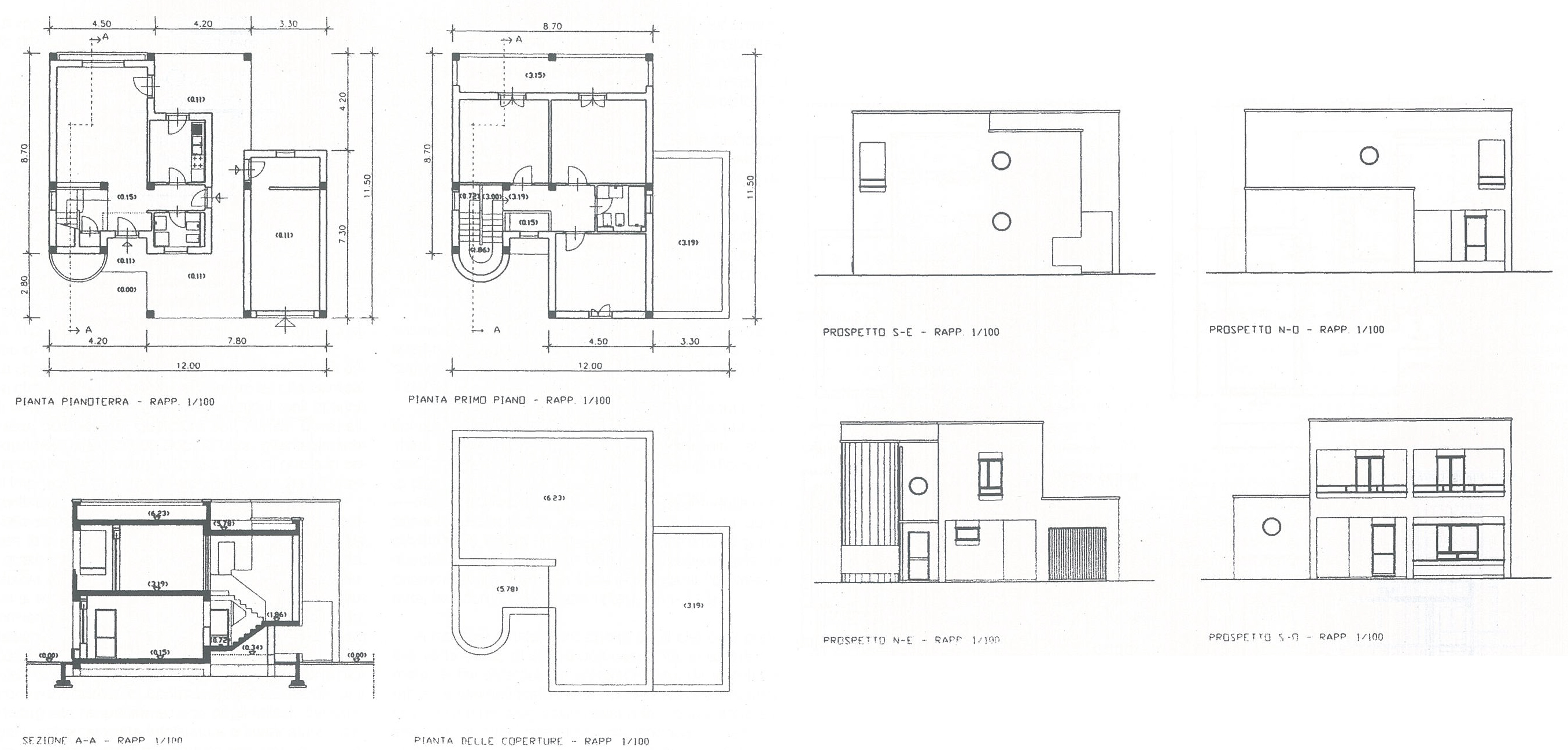
Per descrivere completamente la posizione di qualcosa (forma) nello spazio 3D ne servono almeno 2 accoppiate (doppia proiezione ortogonale o di Monge): da questa necessità nasce la tipica serie di disegni tecnici utili a rappresentare un oggetto architettonico che, nel loro insieme coerente, riescono a descrivere la complessità tridimensionale: piante/prospetti/sezioni.

La sezione si ottiene "tagliando via" una parte dell'oggetto tramite un piano, tipicamente orizzontale (per le piante) o verticale. Si possono anche usare diversi piani per una stessa sezione verticale ma vanno scelti rigorosamente paralleli fra loro. Per le sezioni orizzontali (piante) si posiziona il piano ad un'altezza di poco oltre 1 metro dal piano di calpestio tentanto di intercettare la maggior qualità di informazione architettonica (finestre, salti di quota, strutture. etc...).
Per le sezioni verticali è INDISPENSABILE segnalare in tutte le piante la posizione del piano di sezione e a direzione (con un qualunque simbolo) della vista.

^


Ombre tecniche

Le ombre si disitnguono in Proprie (le parti di un oggetto in ombra perchè oscurate da sè stesso) e portate (le ombre che un oggetto "porta" su di un altro, nascondendolo alla luce). Le ombre portate, nel caso di un rendering di tipo fotorealistico in prospettiva servono a interpretare la profondità della scena e dipendono direttamente dall'insieme delle fonti luminose disposte nella scena per ottenere la migliore illuminazione complessiva.
Le ombre tecniche invece sono create geometricamente considerando una luce parallela (un punto luce a distanza teoricamente infinita) incidente a 45° provieniente in alto a sinistra. Con queste impostazioni le ombre rappresentano un sistema metrico per valutare gli aggetti perchè la dimensione dell'ombra proiettata corrisponde alla reale dimensione dell'aggetto.

^


Standards / Norme

Nell'ambito del disegno le normative/standard pubblicate sono relative esclusivamente alla documentazione di prodotto (UNI / ISO > Technical products). Nell'ambiente dell'architettura ci sono necessità e problematiche spesso molto diverse, pertanto si usano alcune utili indicazioni di queste normative completate dalle consuetudini del lavoro.

^


Scale di rappresentazione

L'oggetto reale può essere rappresentato nelle sue dimensioni reali, ridotto o ingrandito. La scala di rappresentazione non è soltanto un aspetto metrico ma indica anche la fase di sviluppo del processo informativo e il livello di approfondimento da aspettarsi nel disegno.
La scala di disegno indica il rapporto fra l'unità del disegno (il primo numero) e la stessa unità nella relatà (il secondo numero). Una scala di rappresentazione di 1:100, ad esempio, significa che 1 cm nel disegno corrisponde a 100 cm nella realtà. Per facilitare le operazioni dirette di scalataura, nel modo più facile senza calcoli complessi, si usano tipicamente fattori di scala su base 1, 2 o 5 così che sia sufficiente moltiplicare o dividere per fattori decimali o dimezzare/raddoppiare le misure.

La scala di rappresentazione implica, nel mondo analogico della tavola su carta fisica, un limite grafico di rappresentazione. Immaginando una scala del disegno e lo spessore della linea stampata si può definire la dimensione minima di un oggetto di cui si possono rappresentare i bordi mantenendoli distinguibili, ad esempio:
spessore linea 0,1 mm > scala 1:100 > 4 cm dimensione oggetto
spessore linea 0,2 mm > scala 1:200 > 6 cm dimensione oggetto
Anche se questo limite è stato superato dall'uso di software digitali in cui è possibile "zoomare" virtualmente all'infinito i dettagli di un oggetto resta l'approccio tradizionale di identificare il livello di dettaglio di una tavola in base alla scala adottata/richiesta in base alla fase/finalità del disegno, sebbene non ci siano regole standardizzate e si faccia riferimento ad una consolidata consuetudine empirica.
Spesso viene aggiunta al disegno una scala metrica così da assicurare nel disegno un oggetto di dimensione nota, utile a derivare o verificare la scala di rappresentazione adottata.

^


Tratti e campiture

I principali elementi del disegno sono linee e campiture. Le principali caratteristiche dei tratti sono: colore spessore e tipo. Lo spessore è importante se si distingue facilmente un tipo di spessore dall'altro, per questo è buona regola identificare solo 3 spessori in un disegno, ognuno doppio (o metà) dell'altro. Le tipologie di linee sono principalmente continua, tratteggiata, puntinata, punto-linea.
I tipi di campiture standardizzati derivano dalle normative della documentazione di prodotto. Nell'ambito del disegno di architettura le campiture sono principalmente descrittive

^


Discipline

Ogni disciplina richiede un certo "stile" di informazione veicolata nei propri disegni. Si possono distinguere principalmente: architettonica, strutturale, meccanica, impianti.

^